SPRING 2023

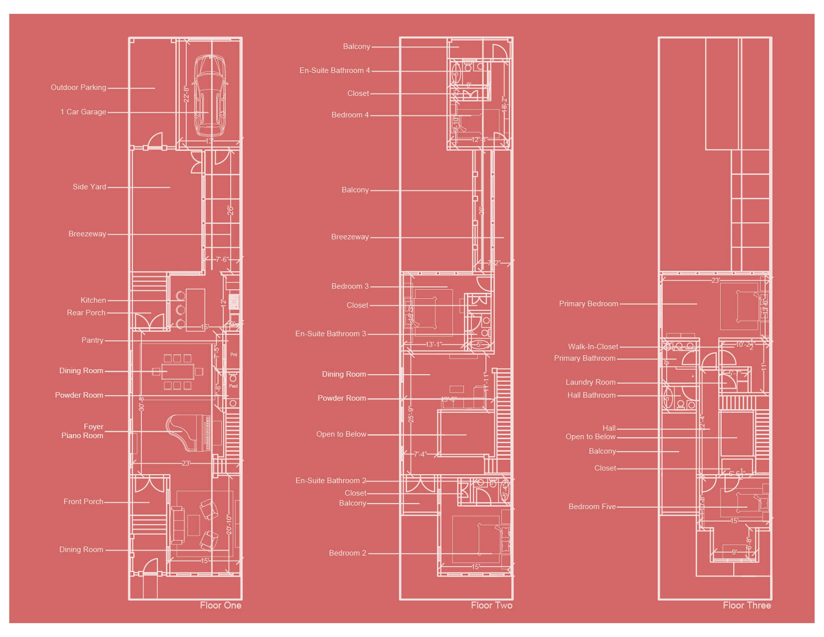
The Home for the Pianist is a project with music at its’ heart. Music is a core pillar that has driven my life for as long as I can remember. This beating rhythm that dominates my life is highlighted within the Home for a Pianist. A three-story foyer is the central core of the home, specially fit to house a grand piano. Once played, the pianos’ notes travel like fresh air through the open halls of the building, allowing every corner of the home to be immersed in song. The home also challenges a consistent problem within row houses. Due to their narrow and at-times light resistant nature, row houses can be cold and resistant to entertaining. The home attempts to challenge this by creating an internal courtyard dominated by glass-heavy walls. This glass shell creates an open and inviting social space while taking advantage of as much natural light as possible.

Professor: Maria Flores

Previous
Previous

blooming hibiscus